| 提交詢價信息 |
| 發布緊急求購 |
價格:電議
所在地:河南 鄭州市
型號:MPM426W[0-3H2O]5ME22C1
更新時間:2021-10-18
瀏覽次數:1980
公司地址:中原區秦嶺路與建設路陽光新干線
![]()
張女士(女士)
產品概述
該產品由高性能壓力傳感器作為測量元件,通過壓力傳感器,把與液位深度成正比的液體靜壓力準確測量出來,并經過專用信號調理電路轉換成標準(電流或電壓)信號輸出,建立起輸出信號與液體深度的線性對應關系,實現對液體深度的測量。產品精度高、體積小、使用方便,直接投入液體中,即可測量出變送器末端到液面的液位高度。適用于石油、化工、電廠、城市供水、水文勘探領域的水位或液位測量與控制。

MPM426W型投入式液位變送器
產品特點
•投入液體中的部分為全密封不銹鋼結構,傳感器與放大電路均在不銹鋼全密封殼體內,防護等級為IP68;
•可選的接線盒為鑄鋁結構件,安裝于方便接線的地方,防護等級為IP65;
•頂部不銹鋼帽可拆卸,既可防止膜片的意外損傷,又便于定期清洗;
•MPM426W產品已取得CE認證;
•MPM426W型產品已獲,ZL00226955.4;
•MPM426W防爆型產品符合GB3836.4標準的ExiaⅡCT6要求,取得了防爆合格證;
•MPM426W船用型產品符合CCS《鋼質海船入級規范》(2006)的要求,獲得船用產品型式認可證書。
性能參數
|
量程 |
MPM426W型 |
1、2、5、10、20、50、100、200mH2O |
|||
|
MPM436W型 |
0.5、1、2mH2O |
||||
|
允許過壓 |
1.5倍滿量程壓力(MPM436W型:10倍滿量程壓力) |
||||
|
精度 |
MPM426W型 |
±0.25%FS(典型)±0.5%FS(zui大) |
|||
|
MPM436W型 |
±0.5%FS(zui小)±1.0%FS(zui大) |
||||
|
穩定性誤差 |
MPM426W型 |
±0.1%FS(典型)±0.2%FS(zui大)量程>20mH2O |
|||
|
±10mmH2O(典型)±20mmH2O(zui大)量程≤20mH2O |
|||||
|
MPM436W型 |
±5mmH2O(典型) |
||||
|
溫度漂移 |
MPM426W型 |
零點漂移,±%FS/℃ |
靈敏度漂移,±%FS/℃ |
||
|
量程>10mH2O |
0.005(典型) |
0.01(zui大) |
0.02(zui大) |
||
|
量程≤10mH2O |
0.01(典型) |
0.02(zui大) |
0.02(zui大) |
||
|
量程≤5mH2O |
0.015(典型) |
0.03(zui大) |
0.02(zui大) |
||
|
量程≤2mH2O |
0.025(典型) |
0.05(zui大) |
0.02(zui大) |
||
|
MPM436W型 |
≤±0.15%FS/10℃(-20℃~+70℃) |
||||
|
≤±0.2%FS/10℃(-30℃~-20℃) |
|||||
|
傳輸方式① |
二線 |
三線 |
三線 |
||
|
電源電壓 |
15~28VDC(本安型經安全柵供電) |
15~28VDC |
15~28VDC |
||
|
輸出信號 |
4~20mADC |
0~10/20mADC |
0/1~5/10VDC |
||
|
負載(Ω) |
<(U-15)/0.02A |
<(U-15)/0.02A |
>5k |
||
|
與介質接 觸 材 料 |
殼體:不銹鋼1Cr18Ni9Ti |
密封件:氟橡膠 |
|||
|
橡膠護套:丁腈橡膠 |
電纜:Φ7.2mm聚乙烯(或聚氨脂)通氣電纜 |
||||
|
膜片:不銹鋼316L(MPM426W型);96%氧化鋁陶瓷(MPM436W型) |
|||||
|
使用溫度范圍 |
MPM426W型 |
-10℃~80℃;本安型:-10℃~60℃ |
|||
|
MPM436W型 |
-30℃~+70℃; |
||||
|
貯存溫度范圍 |
-40℃~100℃(MPM426W型);-30℃~85℃(MPM436W型) |
||||
|
防護等級 |
IP68 (傳感器部分);IP65 (接線盒部分) |
||||
|
防爆等級 |
ExiaⅡCT6 |
||||
①MPM436W型僅提供兩線制輸出形式的變送器,供電12~30VDC,負載<(U-12)/0.02A-Rwire(Ω),式中U為供電電壓,Rwire為導線電阻。
外形結構

電氣連接


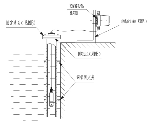
現場安裝示意圖
(單位:mm)



選型指南
|
MPM426W |
型投入式液位變送器 |
||||||
|
MPM436W |
|||||||
|
量程(mH2O) |
[0~XmH2O]LL:電纜線長度,選用時建議L-X=(1~2)m |
||||||
|
代號 |
輸出信號 |
||||||
|
E |
4~20mADC |
||||||
|
F |
1~5VDC |
僅MPM426W |
|||||
|
J |
0~5VDC |
||||||
|
Q |
0~10mADC |
||||||
|
U |
0~20mADC |
||||||
|
V |
0~10VDC |
||||||
|
代號 |
結構材料 |
||||||
|
隔離膜片 |
接口 |
殼體 |
僅MPM426W |
||||
|
22 |
不銹鋼316L |
不銹鋼 |
不銹鋼 |
||||
|
24 |
不銹鋼316L |
不銹鋼316L |
不銹鋼316L |
||||
|
25 |
鉭 |
不銹鋼 |
不銹鋼 |
||||
|
代號 |
附加功能 |
||||||
|
M1 |
0~線性指示表 |
||||||
|
Y |
接線盒 |
||||||
|
i |
本安防爆型ExiaⅡCT6 |
MPM426W,選項C1、C3、C5僅用 |
|||||
|
C1 |
M20×1.5外螺紋壓力接口,端面密封 |
||||||
|
C3 |
G1/2外螺紋壓力接口 |
||||||
|
C5 |
M20×1.5外螺紋壓力接口,水線密封 |
||||||
|
T |
船用 |
||||||
|
F1 |
固定法蘭 |
||||||
|
MPM426W |
[0~3mH2O]5 |
E |
22 |
YiC1 |
完整的型號規格 |
||
選型提示
1、被測介質應與接觸產品部分的材料相兼容,同時需要注明被測介質在測量狀態時的密度(水除外)。
2、電纜線材質有兩種,聚氨脂較為柔軟,耐磨性好,可選擇使用。在沒有特殊注明要求的情況下,按聚乙烯電纜材料供貨。
3、產品安裝于多雷地區時,訂貨時應注明“防雷”,同時建議用戶在現場加裝防雷擊保護裝置,并確保產品及電源可靠接地。
4、若訂購的MPM436W產品,其滿量程折算<0.5mH2O時,本公司提供1.0級精度的產品;
5、特殊要求,敬請與本公司商洽,并在訂單中注明。
香港麥克傳感器產品目錄
OEM壓力敏感元件
MPM180/MPM185 TO-8封裝壓阻式壓力敏感元件
MPM280 壓阻式OEM壓力敏感元件
MPM281 高穩壓阻式OEM壓力敏感元件
MPM283 壓阻式OEM壓力敏感元件
MDM290 壓阻式OEM差壓敏感元件
麥克傳感器MPM380型壓力傳感器
麥克傳感器MPM388型壓力傳感器
麥克傳感器MPM430型壓力變送器
麥克傳感器MPM480[0-100]KpaE22B1PC型壓力變送器
麥克傳感器MPM4730 型壓力變送器
麥克傳感器MPM4760型壓力變送器
麥克傳感器MPM489[0-100Kpa]E22B1C5G型壓力變送器
麥克傳感器MPM482型LCD數字顯示壓力變送器
麥克壓力傳感器MPM4120壓縮機專用壓力傳感器
麥克壓力傳感器MPM483型壓力變送器
麥克壓力傳感器MPM486型智能壓力變送器
麥克壓力傳感器MPM484型壓力變送控制器
麥克智能化壓力傳感器MPM460型智能壓力變送控制器
麥克傳數字化壓力感器MPM484A/ZL型數字化壓力變送控制器
麥克壓力傳感器MPM4530型壓力變送器
麥克高溫傳感器MPM4528高溫壓力測量
麥克壓力傳感器MPM489B型壓力變送器
麥克壓力傳感器MDM3051GP型壓力變送器
麥克壓力傳感器MDM3051AP型壓力變送器
麥克差壓傳感器MDM3051GP/DP型遠傳壓力差壓變送器
麥克壓力傳感器MDM4951GP型壓力變送器
麥克壓力傳感器MDM4951AP型壓力變送器
麥克液位傳感器MPM416W投入式液位變送器
麥克液位傳感器MPM426W投入式液位變送器
麥克壓力傳感器MPM489B 麥克壓力變送器
MPM430型壓力變送器 MPM4700型智能液位變送器
MPM480型壓力變送器 MPM490型壓阻式差壓變送器
MPM4730型壓力變送器 MPM486型HART協議智能壓力變送器
MPM4760型壓力變送器 MSB9418型測控儀
MPM489型壓力變送器 MSB9438型多屏壓力/液位顯示儀
MPM482型LCD數字顯示壓力變送器
PD100型4~20mA保護器
MPM4120壓縮機專用壓力傳感器
MPM483型壓力變送器
MPM486型智能壓力變送器
MPM484型壓力變送控制器
MPM460型智能壓力變送控制器
MPM484A/ZL型數字化壓力變送控制器
MPM4530型壓力變送器
MPM4528高溫壓力測量
MPM489B型壓力變送器
MDM3051GP型壓力變送器
MDM3051AP型壓力變送器
MDM3051GP/DP型遠傳壓力差壓變送器
MDM4951GP型壓力變送器
MDM4951AP型壓力變送器
MPM316W型壓陰式液位傳感 MPM380型壓力傳感器
MPM388型壓力傳感器 MDM390型壓阻式壓力傳感器
MPM416W型液位變送器 MPM426W/436W型投入式液位變送器
麥克傳感器MDM492,MDM490,MDM460
麥克傳感器代理MPM280,MPM281,MPM282,MPM283,MDM290,MPM380,MPM316W,MDM390,MPM388
麥克傳感器代理MPM416WRK,MPM426WJ,MPM426W/416W,MPM436W,MPM416WK,MPM480,MPM430
麥克傳感器代理MPM4530,MTM,MPM482,MPM483,MPM4730,MPM4760,MPM4700,MPM484A/MDM484A
麥克傳感器代理MPM462,MPM486,MPM484ZL/MDM484ZL,MPM484/MDM484,MPM460,MPM460W,MDM460
麥克傳感器代理MDM492,MDM490,MDM460,MDM484,MDM484ZL,MDM484A,MDM3051,MDM4951,MPM580
麥克傳感器代理MPM582,MFM500,MPM583,MSB9438,MSB9418,MSB9458,MDM4951LT,MDM4951DPU,MDM4951GPU
麥克傳感器代理MDM4951DP,MDM4951DR,MDM4951HP,MDM4951DP,MDM4951HP,MDM4951GP,MDM4951AP
麥克傳感器MPM280,MPM281,MPM282
麥克傳感器MPM283,MDM290,MPM380
麥克傳感器MPM316W,MDM390,MPM388
麥克傳感器MPM416WRK,MPM426WJ
麥克傳感器MPM426W/416W,MPM436W
麥克傳感器MPM416WK,MPM480,MPM430
麥克傳感器MPM4530,MTM,MPM482,MPM483
麥克傳感器MPM4730,MPM4760,MPM4700
免責聲明:以上所展示的[MPM426W[0-3H2O]5ME22C1 MPM426W液位變送器]信息由會員[陜西麥克技術工程有限公司]自行提供,內容的真實性、準確性和合法性由發布會員負責。| 詢價標題 | |
| 聯系人 | |
| 電話 | |
| 主要內容 | |
| 驗證碼 | |